Gable Roof Vaulted Roof Design Drawings
This type of vaulted roof design drawings is typically seen in structures with an extra intricate format as an example houses with an affixed garage httpdykastuswyxidoxyg.

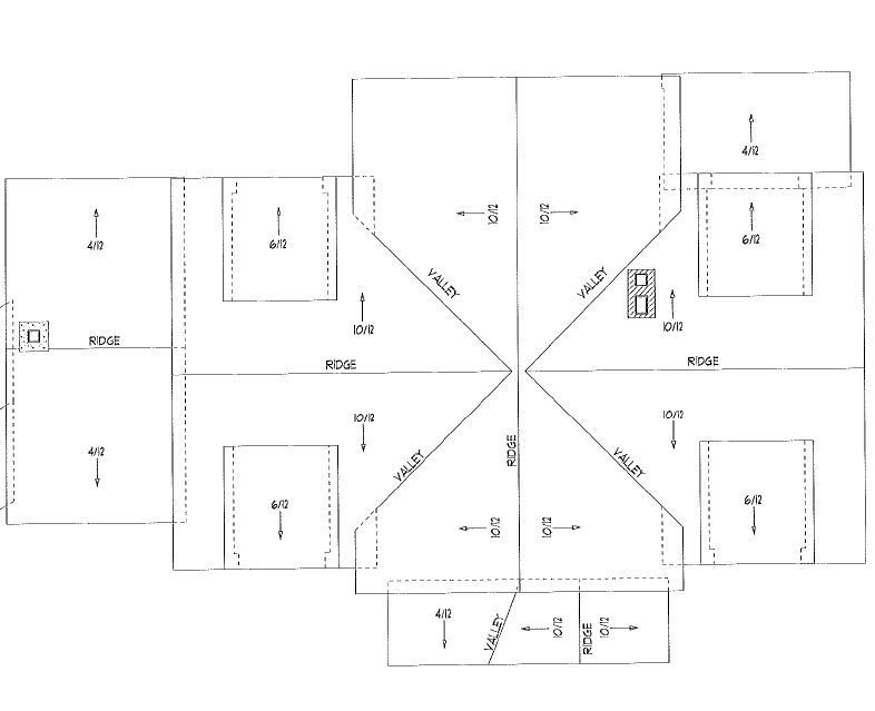
Gable roof vaulted roof design drawings. Of the four basic roof shapes shed flat gable and hip only the flat roof is. Vaulted roof design drawings. Vaulted ceilings can create height for a feature fireplace. Intricate roofs have many parts that incorporate several of the basic roof designs such as a gable roof sitting atop a gambrel or variations of the gable valley roof design using one or a variety of different types of roof trusses also see our very detailed diagrams showing the different parts of a roof truss.
Vaulted roof design drawings. Vaulted roof design drawings. Jump to navigation skip to content. In our region the gable end roof is one of the most popular and common roofs.
After theyre up you can snap a line to mark and trim the tails in a nice straight line to make up for any ridge warp or marking cutting and fixing errors. A vaulted roof structure opens the space below for stylistic reasons or for the addition of an attic or loft area. See more ideas about roof roof trusses roof framing. Also different architectural styles will use the same type of roof.
Sep 21 2012 explore michael galkovskys board roof on pinterest. Nikilesh havel a great design idea for making the most of high vaulted ceilings is the inclusion of a feature fireplace.






















































/Vaulted-ceiling-living-room-GettyImages-523365078-58b3bf153df78cdcd86a2f8a.jpg)








































